• 6 month(s) ago
  • 95 Visualizzazioni

ST430ME - OLEGGIO - VILLA SINGOLA

corso matteotti 73/a, Oleggio, 28047, Novara, Piemonte
€ 430 000,00

Descrizione

Villa
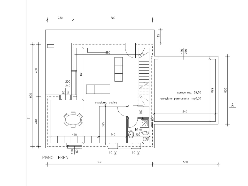
Oleggio - Villa singola di nuova costruzione

Proponiamo in vendita una villa indipendente di nuova costruzione, in classe energetica A++, progettata con materiali e impianti di ultima generazione.
L’immobile, con una superficie commerciale di circa 191 m², è disposto su due livelli e sorge su un lotto di circa 560 m².
Piano Terra: Ingresso su ampio soggiorno luminoso, ideale come zona living e relax.
Cucina a vista abitabile, funzionale e con spazio per tavolo da pranzo.
Ripostiglio pratico per dispensa o locale tecnico. Studio o lavanderia, ambiente flessibile adatto a diverse esigenze, Bagno di servizio con finiture moderne. Box doppio collegato all’abitazione e posti auto esterni. Giardino privato di generose dimensioni.
Piano Primo: Due camere da letto di buone dimensioni, adatte anche come camere per ragazzi o ospiti. Camera padronale con cabina armadio dedicata. Secondo bagno completo, con sanitari sospesi e doccia. Terrazzo coperto e balcone, che ampliano la vivibilità della zona notte.
Dotazioni e comfort:
Ventilazione Meccanica Controllata (VMC) per un ricambio costante dell’aria.
Impianto fotovoltaico per ridurre i costi energetici e l’impatto ambientale.
Predisposizione per colonnina di ricarica auto elettrica.
Tapparelle elettriche in tutte le stanze.
Riscaldamento autonomo elettrico ad alta efficienza.
Orientamento su quattro lati (nord, sud, est, ovest) per un’ottima luminosità naturale.
Posizione: 
zona residenziale tranquilla e ben servita.
L’area offre facilità di collegamento con il centro di Oleggio e le principali arterie stradali verso Novara e il Lago Maggiore, rendendo l’immobile ideale per famiglie o per chi desidera spazi moderni in un contesto riservato.

 Condividi

Facebook   Tweet

 Caratteristiche

Informazioni di base

Locali
4
Camere
3
Bagni
2
Metri quadri totali
191.00 Mq.

Dettagli edificio

Stato immobile
ottimo
Tipo di infissi
doppi vetri
Numero di piani edificio
2
Costruito nel
2025

Informazioni

Giardino
privato
Metri quadri totali
191 Mq.
Superficie giardino
360 Mq.

Servizi

Servizi Generali

Riscaldamento autonomo
porta blindata
caldaia pompa di calore elettrica
serramenti doppio vetro/pvc
spese condominiali no

Accessibilità

accesso disabili - SI

Esterni

Giardino privato
Balcone
portico

Quartiere

Centro commerciale 5 Minuti Con/A Auto
Stazione 5 Minuti Con/A Auto
Stazione Bus 5 Minuti Con/A Auto
Scuola 5 Minuti Con/A Auto
Supermercato 5 Minuti Con/A Auto

Altre informazioni

Altro
Arredato :  no
Disponibilità :  2026
Certificazione energetica :  In attesa di certificazione
Posto auto
Tipologia :  autorimessa
N° posti auto :  2

Richiedi info sull'immobile

Nominativo
Dettagli immobile

 Immobile simile

Immobili dello stesso tipo
DD160VP, OLEGGIO - TRILOCALE
In vendita € 160 000,00
corso matteotti 73/a, Oleggio, 28047, Novara
BORGL220MA, VILLA CLASSE A
In vendita € 220 000,00
via Madre Teresa di Calcutta, Borgolavezzaro, 28071, Novara, Piemonte
OK520VV, OLEGGIO -VILLA SINGOLA
In vendita € 520 000,00
corso matteotti 73/a, Oleggio, 28047, Novara, PIEMONTE
MR225VC, BELLINZAGO NOV. - CASA INDIPENDENTE
In vendita € 225 000,00
corso matteotti 73/a, Bellinzago Novarese, 28047, Novara, piemonte
PVS035, OLEGGIO CENTRO - CASA
In vendita € 295 000,00
CORSO MATTEOTTI 73 OLEGGIO, Oleggio, 28047, Novara, OL
 
 
agenzia immobiliare oleggio malandra

Da oltre 35 anni trasmettiamo passione nel nostro lavoro stando al vostro fianco!

Seguici sui social

Categorie

Recapiti

C.so Matteotti 73/A
28047 Oleggio (NO)

Lun - Ven 9.00 - 12.30 || 14.30 - 18.30
Sab 9.00 - 12.30