• 5 month(s) ago
  • 224 Visualizzazioni

STR330MAT - OLEGGIO - VILLA SINGOLA

Via Strera n. 117, Oleggio, 28047, Novara, Piemonte
€ 330 000,00

Descrizione

Villa
Villa indipendente di nuova costruzione, con consegna prevista entro circa 5 mesi, disposta su due livelli e costruita su un lotto di circa 560 m².

Villa in vendita a Oleggio
Prezzo: €330.000
Superficie commerciale: 161 m²
Locali: 4 | Bagni: 2 | Giardino privato | Box doppio
Descrizione:
Villa indipendente di nuova costruzione, con consegna prevista entro circa 5 mesi, disposta su due livelli e costruita su un lotto di circa 560 m².
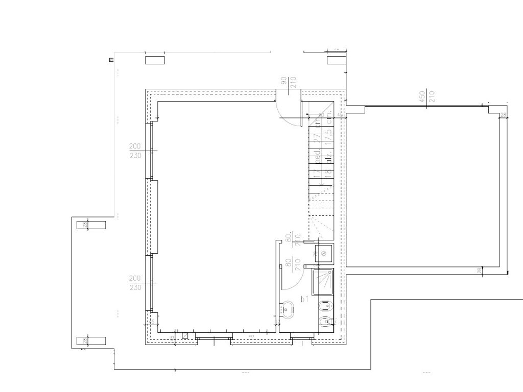
Al piano terra si trovano: Ampio soggiorno/pranzo di circa 47 m² con uscita sul portico coperto e sul giardino, Disimpegno, bagno finestrato, ripostiglio, Accesso diretto al box doppio
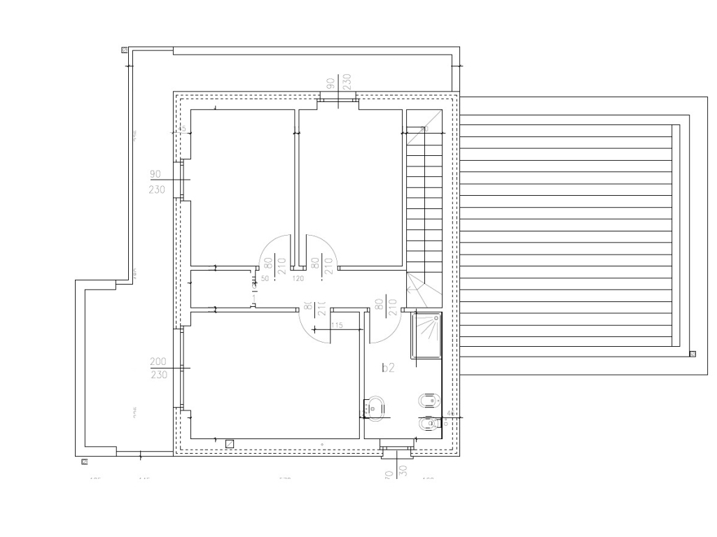
Al piano primo: Camera matrimoniale con terrazzo coperto, Due camere da letto aggiuntive, Secondo bagno finestrato, Ripostiglio/spazio multifunzione
L’immobile è libero su quattro lati, garantendo ottima luminosità e privacy.
Dotazioni principali:
- Superficie interna calpestabile: circa 150 m²
- Giardino privato su tre lati
- Box doppio incluso, con accesso diretto all’abitazione
- Posto auto scoperto aggiuntivo
- Riscaldamento autonomo con pompa di calore
- Predisposizione impianti di raffrescamento
- Classe energetica prevista: A o superiore
- Finiture personalizzabili secondo capitolato
Posizione: Situata in zona residenziale tranquilla, ben collegata e comoda a tutti i principali servizi: scuole, supermercati, aree verdi e mezzi di trasporto. Ideale per chi cerca una casa indipendente in un contesto silenzioso ma non isolato.
Perché sceglierla:
- Abitazione nuova, senza spese di ristrutturazione
- Ottima distribuzione degli spazi e ambienti luminosi
- Possibilità di personalizzare le finiture interne
- Giardino e terrazzi per godersi spazi all’aperto
- Box doppio e posto auto inclusi
Informazioni: è possibile contattarci per ricevere planimetrie, capitolato, dettagli sui materiali e fissare un sopralluogo in cantiere.

Certificazione A.P.E.

Bassi costi di esercizio (kWH/m)
(< 50) A
(51 A 90) B
(91 A 150) C
(151 A 230) D
(231 A 330) E
(331 A 450) F
( > 451) G
A
Basse emissioni di Co2 (kg/m)
(< 5) A
(6 A 10) B
(11 A 20) C
(21 A 35) D
(36 A 55) E
(56 A 80) F
( > 81) G

 Condividi

Facebook   Tweet

 Caratteristiche

Informazioni di base

Locali
4
Camere
3
Bagni
2
Metri quadri totali
161.00 Mq.

Dettagli edificio

Stato immobile
Nuova costruzione
Tipo di infissi
doppio vetro - PVC
Tetto
IN TEGOLE
Pavimentazione
gress
Numero di piani edificio
2
Costruito nel
2026

Informazioni

Giardino
privato
Tipo di terreno
prato
Metri quadri totali
161 Mq.
Zona Giorno
3 Acri

Servizi

Servizi Generali

Riscaldamento autonomo
porta blindata
caldaia pompa di calore elettrica
serramenti doppio vetro/pvc
spese condominiali no

Accessibilità

accesso disabili - SI

Risparmio energetico

Pannelli fotovoltaici

Esterni

Garage
Cancello elettrico
Giardino privato
Balcone
portico

Quartiere

Stazione 5 Minuti Con/A Auto
Centro 5 Minuti Con/A Auto
Centro commerciale 5 Minuti Con/A Auto
Supermercato 5 Minuti Con/A Auto
Scuola 5 Minuti Con/A Auto
Stazione Bus 5 Minuti Con/A Auto

Altre informazioni

Altro
Arredato :  no
Disponibilità :  fine 2026
Certificazione energetica :  Consultabile
Posto auto
Tipologia :  box
N° posti auto :  2

Richiedi info sull'immobile

Nominativo
Dettagli immobile

 Immobile simile

Immobili dello stesso tipo
DD160VP, OLEGGIO - TRILOCALE
In vendita € 160 000,00
corso matteotti 73/a, Oleggio, 28047, Novara
BORGL220MA, VILLA CLASSE A
In vendita € 220 000,00
via Madre Teresa di Calcutta, Borgolavezzaro, 28071, Novara, Piemonte
OK520VV, OLEGGIO -VILLA SINGOLA
In vendita € 520 000,00
corso matteotti 73/a, Oleggio, 28047, Novara, PIEMONTE
MR225VC, BELLINZAGO NOV. - CASA INDIPENDENTE
In vendita € 225 000,00
corso matteotti 73/a, Bellinzago Novarese, 28047, Novara, piemonte
PVS035, OLEGGIO CENTRO - CASA
In vendita € 295 000,00
CORSO MATTEOTTI 73 OLEGGIO, Oleggio, 28047, Novara, OL
 
 
agenzia immobiliare oleggio malandra

Da oltre 35 anni trasmettiamo passione nel nostro lavoro stando al vostro fianco!

Seguici sui social

Categorie

Recapiti

C.so Matteotti 73/A
28047 Oleggio (NO)

Lun - Ven 9.00 - 12.30 || 14.30 - 18.30
Sab 9.00 - 12.30